アウレア
( Aurea )
種別
コンドミニアム (2029年完成予定)
国/エリア
シンガポール / CBD周辺
開発会社
Far East Organization & Perennial Holdings
基本情報
総戸数総戸数188戸 (45階建て)

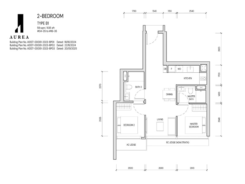
物件タイプ・価格

タイプ 間取り 参考価格 専有面積
タイプA 2Bed 21,409万円
(1,765,000SGD)
59㎡
タイプB 3Bed 31,926万円
(2,632,000SGD)
93㎡
タイプC 4Bed 49,490万円
(4,080,000SGD)
134㎡
タイプD 5Bed 117,976万円
(9,726,000SGD)
266㎡

※ユニット価格は階数、諸条件などにより上下します。詳細はお問い合わせください。

設備・条件

  • 学校近い
  • 病院近い
  • プール
  • ジム
  • スパ
  • ガーデン
  • クラブハウス
  • 先行販売
  • ラウンジ
  • ダイニングルーム

「Aurea(アウレア)」は、シンガポール中心部のカラン地区を通るビーチロード沿いにて進む、歴史的な複合施設「ゴールデン・マイル・コンプレックス」の再開発プロジェクトの一環として、2029年に誕生を予定している、45階建て、全188戸からなる高級コンドミニアム(マンション)です。

本プロジェクトは、シンガポール最大級の規模を誇る不動産開発会社「ファーイースト・オーガニゼーション」と、複合開発に強みを持つ同大手「ペレニアル・ホールディングス」が共同で推進するもの。1973年に完成したシンガポール初の複合施設「ゴールデン・マイル・コンプレックス」を増改築し、オフィススペース、メディカルスイーツ、リテールスペースが一体となった22階建ての新複合施設「ゴールデン・マイル」へと生まれ変わらせると共に、その隣接地に新たに住宅棟「アウレア」を開発する計画で、エリアの新たなアイコンとなることが期待されています。

開発地となるカラン地区は、CBD(ビジネス中心地)や繁華街「オーチャード」へのアクセス性に優れたエリアであり、本物件から両エリアまで車なら10分前後、最寄り駅となるMRTサークル線「ニコル・ハイウェイ駅」からもそれぞれ15分前後で移動することができます。

また、物件周辺には人気商業施設が数多く立地。車で5分前後の範囲内に、国内最大級の規模を誇る「サンテック・シティ・モール」、シンガポール国立競技場と隣接する「カラン・ウェーブ・モール」、若者で賑わう「ブギス・ジャンクション」、高級店が充実した「ラッフルズ・シティ」などが集積しており、多様なニーズに対応できる生活利便性の高さも魅力です。

さらに、本物件はマリーナ沿いに位置し、視界が開けていることから、伸びやかなパノラマビューを堪能することが可能。CBDエリアの摩天楼はもちろんのこと、マリーナ越しにランドマークタワー「マリーナ・ベイ・サンズ」、夜のライトアップが美しい「ガーデンズ・バイ・ザ・ベイ」や「シンガポール国立競技場」なども眺望することができます。

ご興味をお持ちの方は、まずはお気軽にお問い合わせください。

所在地マップ